If you want to know about the visual things in architecture or what is line or theory of proportion, please click the link.
Form and space are closely related concepts in architecture and design. Form refers to the three-dimensional shape of an object, while space refers to the area or volume around, within, and between objects. In design, form and space work together to create a visual experience and establish the overall feeling of a space.

Forms can be used to define space, create a sense of hierarchy, and establish a sense of direction or movement. The interplay between form and space can create harmony, contrast, and tension, which can be used to influence how people perceive and experience the space.
Form and space are complementary and inseparable aspects of architecture.
The form of a building is its physical substance
The materials and structures that make up the building and enclose or create the spaces within it.
1) Formation of Space in Architecture
- In architectural language, the relationship between form and space can be thought of as a ‘solid-void relationship’.
- The spaces created by a building include both interior space and exterior space, which may interweave or influence each other.
- Architectural elements like columns, walls, floors and ceilings are physical elements that shape a space.
- Form contains functional spaces and space offers particular experiences.
- Parameters controlling form and space include shape, degree of enclosure, dimensions, proportions, materials, colours and textures.

- In plan, columns at four ‘points’ of a square grid define a rectangular space in between. In elevation, they are seen as vertical linear elements of the space.
- In plan, a row of columns creates a ‘line’ that separates two spaces. At the same time, it creates a vertical ‘plane’ — walls are vertical planes, and floors and ceilings are horizontal planes. They create the ‘volume’ of spaces for our daily activities.
- Buildings in a city can be regarded as large-scale ‘volumes’. The elevations of the buildings create external spaces between their vertical planes. These spaces may be narrow streets or wide plazas.
2) The Relationship of Form and Space
In architecture and interior design, form and space are closely intertwined and play a critical role in shaping the overall aesthetic and functionality of a space.
i) Relationship of Form and Space in architecture
In architecture, the relationship between form and space is central to creating functional and aesthetically pleasing buildings. Form refers to the physical shape and structure of a building, while space refers to the area within and around it.
- Form and space work together to create a harmonious and functional environment. For example, the shape of a building can influence the amount and quality of natural light that enters the space, as well as the flow of air and circulation patterns. This, in turn, affects the functionality of the interior spaces and how they are used.
- Architects also use form to define and shape space in creative and innovative ways. For example, a building may have curved or angled forms that create a sense of movement, or it may have a repeated pattern of forms that create a sense of rhythm and order. The interplay between form and space can also be used to create a sense of hierarchy and direction within a building.
Overall, the relationship between form and space is critical in architecture, as it affects the functionality, aesthetic, and cultural significance of a building.
ii) Relationship of Form and Space in interior design
In interior design, the relationship between form and space plays a key role in creating functional and aesthetically pleasing environments. Form refers to the shape and structure of furniture, decor, and other elements within a space, while space refers to the area around and within them.
- Form and space work together to create a harmonious and functional environment. For example, furniture and decor can be used to define different areas within a room and establish a sense of hierarchy. A sofa and chairs can be arranged in a conversational grouping to create a comfortable and inviting living space, while a dining table can be used to define a dining area.
- The use of form in interior design can also affect the perception of space. For example, large, bold forms can make a room feel larger and more expansive, while smaller, more intricate forms can create a sense of intimacy.
- The relationship between form and space in interior design is also influenced by cultural, historical, and social context. Different styles, such as Traditional, Modern, or Minimalism, use form and space in unique ways to express cultural values and ideals.
In conclusion, the relationship between form and space is a critical consideration in interior design, as it affects the functionality, aesthetic, and cultural significance of a space.
3) Five points of modern architecture related to Form and Space
- Emphasis on Functionality: Modern architecture places a strong emphasis on functionality, which is reflected in the form and space of buildings. Simplicity and clarity in form and space are key principles in modern architecture, as they contribute to the functionality and ease of use of a building.
- Use of Open Space: Modern architecture often incorporates open space in the form of large windows, balconies, and open floor plans. This allows for more natural light to enter the space and creates a feeling of spaciousness.
- Minimalism: Modern architecture is characterized by a minimalist aesthetic, which is reflected in the simple, clean lines and lack of ornamentation in the form of buildings. This simplicity in form contributes to the functionality and clarity of the space.
- Integration of Technology: Modern architecture often incorporates the latest technologies, such as sustainable materials and energy-efficient systems, into the form and space of buildings. This helps to create functional and environmentally responsible buildings.
- Celebration of Progress: Modern architecture reflects the cultural values and ideals of the time, including a celebration of progress and the future. The form and space of modern buildings often reflects this, with bold, innovative designs that break with traditional architectural forms.
In conclusion, the relationship between form and space is central to modern architecture, as it affects the functionality, aesthetic, and cultural significance of a building. The principles of simplicity, functionality, open space, minimalism, and integration of technology are key considerations in modern architecture and shape the form and space of buildings in unique and innovative ways.
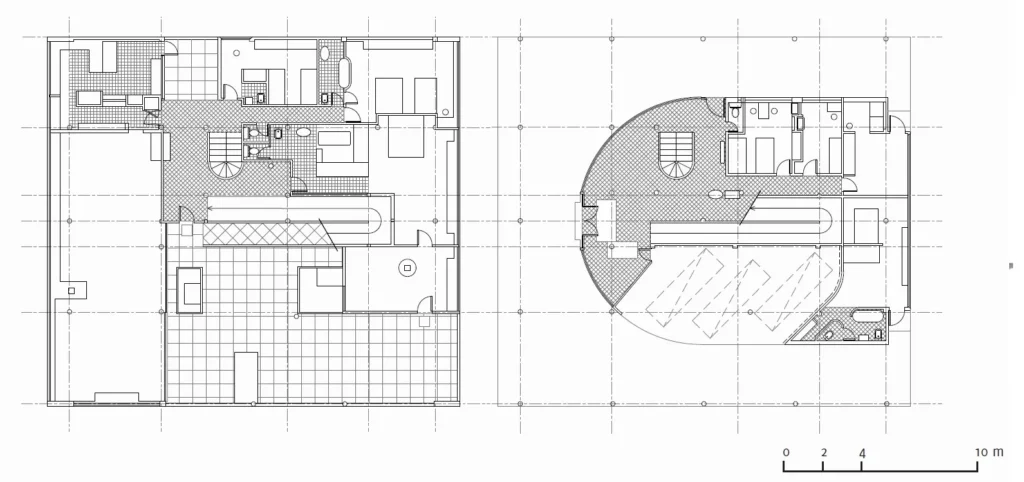
—Example of Le Corbusier’s building —
- Pilotis: Space is structurally supported by pillars (points). The building is raised off the ground to provide circulation space and room for services.
- Free façade: Because of the use of pillars, the façade of the building is formed according to the internal use of space rather than supporting walls (plane).
- Open floor plan: Since pillars are the only structural elements, floor space is left free from a rigid configuration of structural walls.
- Horizontal strip windows: Horizontal windows allow a view across the horizon and bring natural light into the building.
- Roof garden: The roof garden is conceived as a compensation for the area of ground plane consumed by the building’s footprint.


A grid of pillars is the basic structure of the building, supporting horizontal beams and slabs. Elevating the first floor provides a better view through the strip windows. Rooms can be configured according to the function of the space.
4) Summary
- In architectural language, the relationship between form and space is often conceived as a ‘solid-void relationship’.
- Form contains functional spaces and spaces offers particular experiences.
- Parameters controlling form and space include shapes, dimensions, proportions, materials, colours and textures.
- Different kinds of forms and spaces are created in response to functional requirements, context, or the architect’s desire to create a unique spatial experience.
Examples
- The Church of Light in Osaka, Japan was designed by the architect Tadao Ando.

- The structure is made of opaque concrete with the exception of an opening behind the altar that forms a cross.
- Natural light passes through this gap to illuminate the interior of the church and create a sacred and peaceful atmosphere.
- I.M. Pei designed these transparent pyramid-shaped skylights as additions to the Louvre Museum in Paris.

- Their geometry and transparency contrast interestingly with the surrounding historic buildings.

- The skylights provide natural illumination to the museum’s underground reception area.
- Notre Dame du Haut in Ronchamp, France was designed by Le Corbusier.

- Coloured translucent glazing and irregular openings create a dramatic pattern of light inside the chapel.
Architecture respond to the creation of simplifying earth to world for human and all other living environment