If you want to know about the planning of electrical installation or concept of earthing system or introduction of electricity production, please click the link.
The electrical distribution system is a network of electrical components and equipment used to distribute electricity from the main power source to various parts of a building, facility or region.
- The electrical energy produced at the generating station is conveyed to the consumers through a network of transmission and distribution systems.
- The transmission and distribution systems are similar to man’s circulatory system.
- The transmission system may be compared with arteries in the human body and distribution system with capillaries
- They serve the same purpose of supplying the ultimate consumer in the city with the life-giving blood of civilization electricity
- That part of power system which distributes electric power for local use is known as distribution system.
- In general, the distribution system is the electrical system between the substation fed by the transmission system and the consumers’ meters.
- It generally consists of feeders, distributors and the service mains.
1) Component of distribution system
i) Feeder
- A feeder is a conductor which connects the substation (or localized generating station) to the area where power is to be distributed Generally, no tapping’s are taken from the feeder so that current in it remains the same throughout the main consideration in the design of a feeder is the current carrying capacity.
ii) Service Mains
- A service mains is generally a small cable which connects the distributor to the consumers’ terminals.
iii) Distributor
- A distributor is a conductor from which tapping’s are taken for supply to the consumers in the figure, AB, BC, CD and DA are the distributors The current through a distributor is not constant because tapping’s are taken at various places along its length While designing a distributor, voltage drop along its length is the main consideration.

2) Components of Electrical (Secondary) Distribution
- Electrical Substation
- Transformers
- Distribution Systems (on site and building block)
- Safety devices and metering devices
- Standby Power Generator (DG)
i) Electrical Substation
- A substation is the part of an electrical generation, transmission, and distribution system Substations transform voltage from high to low, or the reverse with help of the transformer, or perform any of several other important functions Between the generating station and consumer, electric power may flow through several substations at different voltage levels
a) Electrical Substation at site level
- HV supply is received by Ring main unit RMU in the premises from the State Power Supply at either 22 KV/ 11 KV (i e standard voltage as per State Electricity board)
- The main supply splits here (if required) into multiple lines depending upon the requirement with the help of Ring Main Unit RMU
- HV supply is stepped down into low voltage with the help of transformers for the domestic purpose and then supplied ahead
b) Main functions of RMU are
- Receives the HT line.
- Split the main line into multiple lines depending on the requirement.
- Protects the system during faults.

ii) Transformer
- A transformer is a machine that used for transforming power from one circuit to another without changing frequency A transformer can accept energy at one voltage and deliver it at another voltage.

Key Differences between Step up transformer and Step down transformer
- When the output (secondary) voltage is greater than its input (primary) voltage, it is called a step-up transformer, whereas, in step down transformer output (secondary) voltage is less.
- Same transformer can be used as a step up or a step-down transformer It depends upon the ways in which it is connected in the circuit If input supply is given on the low voltage winding, then it becomes a step-up transformer Alternately, if the input supply is provided on the high voltage winding, the transformer becomes a step down one
iii) Distribution system

- Once the power supply voltage is stepped down by the transformer the LV line is sent to ahead for the domestic use through the Feeder Pillar The distribution system can dived in to Overhead or Underground System.

Comparison
- Public safety
- The underground system is safer than overhead system because all distribution wiring is placed underground and there are little chances of any hazard
- Initial cost
- The underground system is more expensive due to the high cost of trenching, conduits, cables, manholes and other special equipment The initial cost of an underground system may be five to ten times than that of an overhead system
- Flexibility
- The overhead system is much more flexible than the underground system in the latter case, manholes, duct lines etc. are permanently placed once installed and the load expansion can only be met by laying new lines However, on an overhead system, poles, wires, transformers etc. can be easily shifted to meet the changes in load conditions
- Faults
- The chances of faults in underground system are very rare as the cables are laid underground aprox 3 ft and are generally provided with better insulation
- Appearance
- The general appearance of an underground system is better as all the distribution lines are Invisible This factor is exerting considerable public pressure on electric supply companies to switch over to underground system
Overhead versus Underground System

iv) Service connection
- The line bringing (underground or overhead) electric power from supplier’s low voltage distributor up to the energy meter installed at the consumer’s premises is called the service connection.

- When the electricity comes into a house, it first of all goes through a meter to measure how many ‘units’ (kWh) of electrical energy are used After the meter, the electricity goes through the main switch, which can be used to cut off the electricity supply altogether if, for instance, repairs and changes have to be made to the wiring.

- An electricity meter or energy meter is a device that measures the amount of electric energy consumed by a residence, business, or an electrically powered device Electricity meters are typically calibrated in billing units, the most common one being the kilowatt hour kWh.

4) Distribution in building
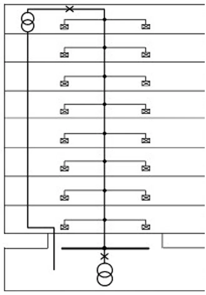
i) The vertical supply system (rising mains)

- The vertical supply system is implemented in several ways, some of which are
Single Rising Main
- In this type of system only one main line goes to the upper level and distribute at each floor respectively Not very common in practice, generally used at place where high supply security system is not important.
Advantages of this system
- Only a small main L V board is required.
- Simple in construction and operation.
Disadvantage for this system
- Low supply security (a fault in the rising mains effect all floors).
Grouped supply

- Another type of electrical system of distribution, in these two or more main lines run together and serves different floors.
Advantages of this system
- Easier mounting.
- Smaller size for rising mains
Disadvantage for this system
- A fault in any rising mains effect several floors (relatively low Security)
- Loads are balanced only within each group
- Larger power distribution board
Individual floor supply

- In high rise buildings were stories are let separately (metering is at central point at ground floor)
Advantages of this system
- Smaller size of cables can be used (easy installation).
- In the case of a fault in arising main, only one story is affected.
Disadvantage for this system
- Different loading of the individual floors cannot be balanced out.
- The rising main must be rated for the peak load of each floor.
- Uneconomical large number of cables and the size of the rising main shaft is quite large low voltage distribution board with numerous circuits.
Double feed supply

- In large buildings with relatively large loads at the top floors (Kitchen, air conditioning)
Advantages of this system
- Higher power supply security.
- The differing loading of individual floors are balanced out.
- Smaller LV distribution board required.
Disadvantage for this system
- Complex to install.
ii) The horizontal supply system (Distribution at each floor level)
Distribution Board
- A distribution board i s a component of an electricity supply system that divides an electrical power feed into subsidiary circuits while providing a protective fuse or circuit breaker for each circuit in a common enclosure Normally, a main switch and in recent boards, one or more residual current devices RCD or residual current breakers with over current protection RCBO are also incorporated

- Sequence of electricity distribution in building after feeder pillar
Main distribution board of building
- Distributes the electricity to the various floor of the building
FLOOR distribution board
- Distributes the electricity to individual flat on a floor
FLAT distribution board
- Distributes the electricity inside to the various areas of flat
Room distribution board
- Distributes the electricity to the various appliances of a room
Conductor
- Conductors conduct electrical current very easily because of their free electrons Some common conductors are copper, aluminium gold, and silver
Insulators
- Insulators oppose electrical current and make poor conductors Some common insulators are glass, air, plastic, rubber, and wood

Form of Conductor
- Cables
- wires
The electrical distribution system is designed to provide reliable and safe electricity to its customers, and it is maintained and operated by the utility company.
Good job
I have learned a lot thanks