If you want to know about the planning of electrical installation or layout of substation in a building or introduction of electricity production, please click the link.
Earthing is a system that provides a path for electric current to flow to the earth. The earth is used as a reference point for all electrical systems, and the main purpose of earthing is to protect people and equipment from electric shocks and to prevent damage to electrical equipment due to lightning strikes, surges, and other electrical faults.
- All the people living or working in residential, commercial and industrial installations, particularly the operators and personnel who are in close operation and contact with electrical systems and machineries, should essentially be protected against possible electrification.
- To achieve this protection, earthing system of an installation is defined, designed and installed according to the standard requirements.
1) What Is Earthing
- The process of connecting metallic bodies of all the electrical apparatus and equipment to huge mass of earth by a wire having negligible resistance is called Earthing.

- The term earthing means connecting the neutral point of supply system or the non current carrying parts of the electrical apparatus to the general mass of earth in such a manner that all times an immediate discharge of electrical energy takes place without danger.
2) Objectives of the earthing
- Provide an alternative path for the fault current to flow so that it will not endanger the user.
- Ensure that all exposed conductive parts do not reach a dangerous potential.
- Maintain the voltage at any part of an electrical system at a known value so as to prevent over current or excessive voltage on the appliances or equipment.
4) Good earthing means
- Good Earthing must have low impedance or Low Resistance enough to ensure that sufficient current can flow through the safety device so that it disconnects the supply (<0.4 sec).
- Fault current is much more than the full load current of the circuit which melts the fuse. Hence, the appliance is disconnected automatically from the supply mains.
5) Qualities of good earthing
- Must be of low electrical resistance
- Must be of good corrosion resistance
- Must be able to dissipate high fault current repeatedly

6) Purpose of earthing
- To save human life from danger of electrical shock or death by blowing a fuse i.e. To provide an alternative path for the fault current to flow so that it will not endanger the user.
- To protect buildings, machinery & appliances under fault conditions. To ensure that all exposed conductive parts do not reach a dangerous potential.
- To provide safe path to dissipate lightning and short circuit currents.
- To provide stable platform for operation of sensitive electronic equipment’s i.e. To maintain the voltage at any part of an electrical system at a known value so as to prevent over current or excessive voltage on the appliances or equipment.
- To provide protection against static electricity from friction.
7) Electric shock
- An electric shock (electrocution)occurs when two portion of a person’s body come in contact with electrical conductors of a circuit which is at different potentials, thus producing a potential difference across the body.
- The human body does have resistance and when the body is connected between two conductors at different potential a circuit is formed through the body and current will flow.
- When the human body comes in contact with only one conductor, a circuit is not formed, and nothing happens. When the human body comes in contact with circuit conductors, no matter what the voltage is there is potential for harm.
- The higher the potential difference the more the damage. The effect of an electric shock is a function of what parts of body come in contact with each conductor, the resistance of each contact points the surface resistance of the body at the contact as well as other factor.
- When the electrical contact is such that the circuit path through the body is across the heart, you have the greatest potential for death.
- As shown in fig the human body’s resistance varies from as low as 500 ohms to as high as 600,000 ohms. As the skin become moist the contact resistance drops. If the skin is moist due to sweat that contain salt the resistance drops further
- Figure 1 (Below) illustrates the amount of current that can flow through human body at three different potential differences across the body also shown is the effect of different current level both AC and DC the ultimate effect is fibrillation which cause the heart to stop and result in death.
- When a high voltage such as 13,800V is involved the body is literally cooked and at times explodes

- To analyze how an electrical shock occurs and how grounding is applied you need to look at the circuit involved.
- Fig 2 (Below) illustrates the basic circuit that consist of a source, a transformer or generator for all AC circuits, circuit protection, conductors(R1s), and a load (RL).

- A short circuit is any unintended connection Rsc across the circuit conductors between the power source and the load.
- See the second circuit in fig short circuit are classified as bolted shorts, momentary shorts, intermittent shorts, or high impedance shorts. A bolted short which is rare is a very low resistant connection such as two conductors being bolted together.

- Most shorts are high resistant, or they are momentary or intermittent. The high resistant short starts out as a high resistance or impedance connection but usually progress to a low impedance connection.
- In electrical system shorts are classified as phase to phase, phase to neutral, or phase to ground short.
- Most short are phase to ground and short which start as phase to phase or phase to neutral progress to a phase to ground short.
- When considering short circuit and protecting against the damage they can cause one needs to know what is the maximum amount of short circuit current that can flow in a given circuit.

8) Equipment Earthing
- In case of insulation failure, the primary object of connecting all the above points and apparatus to earth is to release the charge accumulated on them immediately to earth so that the person coming in contact may not experience electric shock.
- The other object is that a heavy current when flows through the circuit that operates the protective devices that is fuse or CB, which open the circuit
Max. Value of Earth Resistance to be achieved

* The Earth Resistance depends upon the moisture content in the soil.
Equipment Earthing type
- Conventional Earthing
- Maintenance Free Earthing
i) Conventional Earthing
- The Conventional system of Earthing calls for digging of a large pit into which a GI pipe or a copper plate is positioned in the middle layers of charcoal and salt.
- It requires maintenance and pouring of water at regular interval.

ii) Maintenance Free Earthing
It is a new type of earthing system which is Readymade, standardized and scientifically developed. Its Benefits are:
- Maintenance free: No need to pour water at regular interval- except in sandy soil.
- Consistency: Maintain stable and consistent earth resistance around the year.
- More surface area: The conductive compound creates a conductive zone, which provides the increased surface area for peak current dissipation. And also get
- Low earth resistance: Highly conductive. Carries high peak current repeatedly.
- No corrosion
- Long life
- Easy installation
9) Methods of conventional earthing
- Plate Earthing
- Pipe Earthing
- Rod Earthing
- Strip Earthing
- Earthing through Water Mains
Earthing Electrode
The resistance of a ground electrode has 3 basic components:

A) The resistance of the ground electrode itself and the connections to the electrode.
B) The contact resistance of the surrounding earth to the electrode.
C) The resistance of the surrounding body of earth around the ground Electrode. It consist of three basic components:
- Earth Wire
- Connector
- Electrode
Plate Earthing

- In this type of earthing plate either of copper or of G.I. is buried into the ground at a depth of not less than 3 meter from the ground level.
- The earth plate is embedded in alternative layer of coke and salts for a minimum thickness of about 15cm.
- The earth wire(copper wire for copper plate earthing and G.I. wire for G.I. plate earthing) is securely bolted to an earth plate with the help of bolt nut and washer made of copper, in case of copper plate earthing and of G.I. in case of G.I. plate earthing.
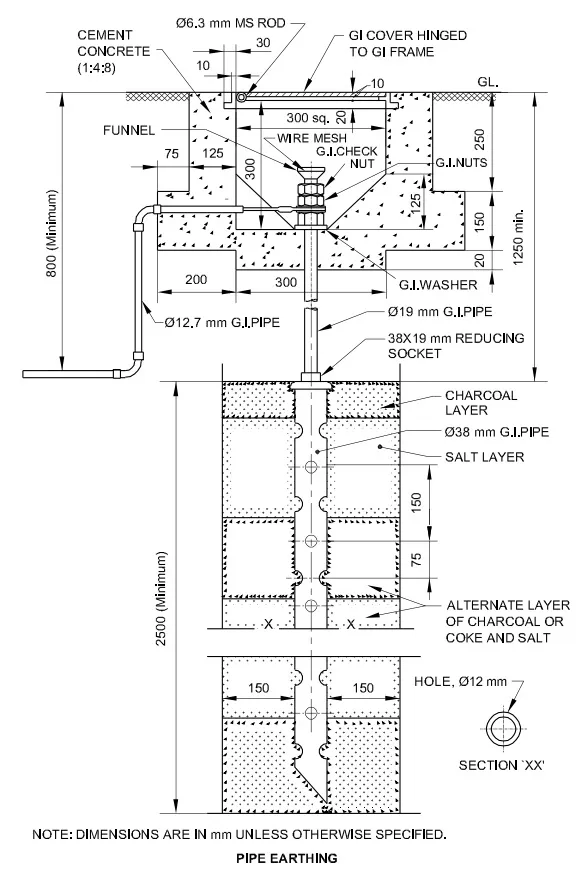
Pipe earthing

- Pipe earthing is best form of earthing and it is cheap also in this system of earthing a GI pipe of 38 mm dia and 2meters length is embedded vertically in ground to work as earth electrod but the depth depend upon the soil conditions, there is no hard and fast rule for this.
- But the wire is embedded upto the wet soil.
- The earth wire are fastened to the top section of the pipe with nut and bolts.
- The pit area arround the GI pipe filled with salt and coal mixture for improving the soil conditions and efficiency of the earthing system.
- It can take heavy leakage current for the same electrode size in comparison to plate earthing.
- The earth wire connection with GI pipes being above the ground level can be checked for carrying out continuity test as and when desired, while in plate earthing it is difficult.
- In summmer season to have an effective earthing three or four bucket of water is put through the funnel for better continuity of earthing.
Rod earthing
- In this system of earthing 12.5mm diameter solid rods of copper 16mm diameter solid rod of GI or steel or hollow
section of 25mm GI pipe of length not less than 3 meters are driven vertically into the earth - In order to increase the embeded length of electrod under the ground, which is some time necessary to reduce the earth resistance to desired value more than one rod section are hammered one above the other.
- This system of earthing is suitable for area which are sandy in character .
- This system of earthing is very cheap
Strip or wire earthing
- In this system of earthing strip electrod of cross section not less than 25mm into 1.6mm of copper or 25mm * 4mm of GI or steel are burried in horizontal trenches of minimum depth of 0.5m
- If round conductor are used their cross sectional area shall not be smaller than three if copper is used and 6mm2 if GI or steel is used.
- The length of burried conductor shall be sufficient to give the required earth resistance (about 0.5Ωto 1.5Ω)
- It shall however be not less than 15 m
- The electrod shall be as widely distributed as possible in a single straight or circular trenches radiating from a point
- This type of earthing is used in rockey soil earth bed because at such places excavation work for plate earthing is difficult
10) Procedure for filling up new earthing pit

Step A
- Excavate the earthing pit size 2000 X 2000 X 2500 mm depth. Sprinkle sufficient quantity of water in the bottom and surrounding walls to become wetty only.
- Fill up the bottom layer of the pit up to 250 mm height from the bottom by mixture black soft soil + salt + wooden charcoal pieces. (Fig. I)
Step B
- Prepare the electrode assembly as per Sr. No. – 3 of the drawing and rest the entire Assembly in the pit as shown in (Fig. II)
Step C
- Collect thin C.R.C. sheet approx 18 to 20 SWG having size 500 mm width 3.5 meter length approx. (Please make joints of three to four pieces to achieve requirement of 3.5 meter length (Fig. III-a).
- Prepare the Cylindrical Ring from the above sheet by bending both ends & joining each other. The diameter “D” of the cylindrical ring shall arrive approx. 1000 mm and height shall be 500 mm. Collect two pieces of scrap G.I. wire of approx. 8- SWG and prepare two lifting round handles (Hooks) on upper side of the cylindrical ring to facilitate the lifting of the Cylindrical Ring. (Fig. III-b)
- Now wear this cylindrical ring to the electrode pipe of the electrode assembly such a way that the electrode pipe remains in the centre of the cylindrical ring. (Fig III-c)
Step D
- Fill up the inner part of the Cylindrical Ring with Mixture – I. Homogeneous mixture of Black Soft Soil.
- The remaining part i.e., the Gap between walls of the pit and outer periphery of the Cylindrical Ring by Mixture – II. After completing filling work of both the mixtures up to 500 mm height, proper ramming and watering is to be done. (Fig. IV)
Step E
- There after lift the cylindrical ring by help of two lifting handles (hooks) and again rest it on the layer for carrying
out filling of 2nd layer cycle. Again, fill up the inner cylindrical part of the ring by Mixture – I and outer gap between walls of the pit & outer cylindrical periphery by Mixture – II up to height of the Cylinder (i.e. 500 mm) (Fig. V)

Step F
- Lift the cylindrical ring by lifting handles (hooks) after proper ramming and watering. Now again place the cylindrical ring on upper layer and arrange 3rd cycle, subsequently complete the filling of entire pit. Please see that water content is minimum 20 %
- Fill up upper layer of the pit by crushed rock pieces (Gravel) size 50 X 35 mm. 1 CMT. approx. to provide insulating layer to person moving side by the pit, and to prevent reptile movements subsequently causing hazards.
Standard Pipe & Plate Type Earthing Design for the 11 Kv. System Equipment’s, Distribution Transformer Centers, L.T. Distribution System Equipment’s

Design Details:
- Earthing Pit: Size 1000 X 1000 X 1800 mm Depth.M.S. / C.I. Plate : 500 X 500 X 8 mm Thick.
- Electrode Assembly: 40 mm Ø GI / CI Perforated pipe duly fitted or welded with base plate and 50 X 6 mm flat termination taken on top for equipment earthing as shown in drawing.
- Mixture – I: Homogeneous mixture of black soft soil 0.3 CMT. approx.
- Mixture – II: Homogeneous mixture of common salt 25 Kgs. + wood charcoal pieces 25 Kgs. + Black soft soil 1 CMT. Approx.
- Crushed Rock pieces Gravel Size 50 X 35 mm 0.1 CMT. Approx.
- Arrangement for earthing lead terminations from equipment body, and connection for main earthing Grid.
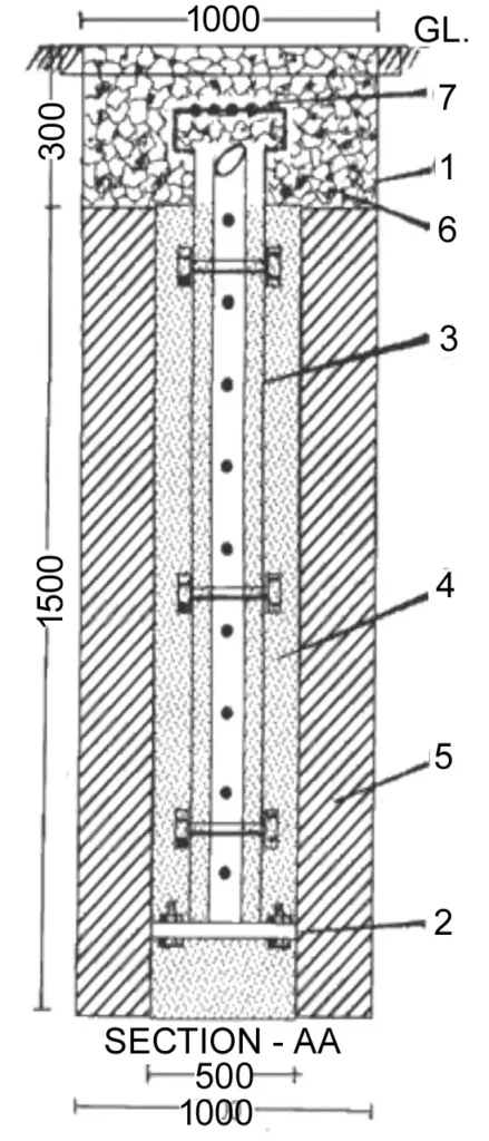
Typical arrangement for pipe electrode earthing pit ( Bore type )

Design Details:
- 75 mm thick RCC Cover.
- 300 mm Ø 6000 mm deep (Approx. 20 ft.) bore in the earth.
- 65 mm Ø 6000 mm long (Approx 20 ft.) G.I. pipe electrode. Forged at the top up to 75 mm length
and 12 mm hole provided for taking earthing connection. - A homogeneous mixture of 50 kgs. wooden coal pieces + 50 kgs. common salt
- Water pouring purpose at the time of routine maintenance
11) Applications
- Telecommunication
- Transmission
- Substations & Power Generations
- Transformer Neutral earthing
- Lightning Arrestor Earthing
- Equipment Body Earthing
- Water Treatment Plants
- Heavy Industries
- College, Hospitals, Banks
- Residential Building
Earthing systems are important in electrical installations because they help to protect people and equipment from electrical hazards. They are also essential for ensuring that electrical equipment operates correctly and does not cause interference with other electrical systems. Proper design, installation, and maintenance of earthing systems are critical to ensure that they function correctly and provide the required level of protection.