A multipurpose sports hall is a versatile indoor facility designed to accommodate a variety of sports, recreational activities, and community events. Unlike single-use sports arenas, these halls are adaptable and can support multiple sports such as basketball, badminton, volleyball, futsal, table tennis, and gymnastics within the same space.

Modern multipurpose sports halls often include movable seating, adjustable flooring, and modular partitions, allowing for quick reconfiguration based on the event’s requirements. They serve not only as sports hubs but also as venues for concerts, exhibitions, and corporate gatherings.
If you want to know about the Types of slabs or Permeable concrete or Islamic architecture, please click the link.
1) Sports Halls : Sizes and Layouts
This Guidance Note recommends minimum dimensions for the design of multi-sports halls.
In SAI centres (Sports Authority of India), the standard practice is to construct a Multipurpose hall of size 60 m X 40 m with height of 12.5 mt with the aim of using it for any sports discipline at a later date.
Such halls are power guzzlers also because of higher lighting and air conditioning load. However considering the budgetary constraints also, it is a very costly proposition as later on these multipurpose halls are generally used for Combat sports and other sports, for which 12.5 mt height and wooden flooring may not be required.
Moreover the requirement of 12.5 mt heights is only for few sports disciplines like badminton etc and that too for world level competitions only.
i) Size
- Multipurpose halls should be designed, planned and constructed specific for sports disciplines it is proposed to be used for optimum utilization of space.
ii) Flooring
Field of Play
- Flooring should generally be seamless synthetic Polyurethane flooring over shock absorbing layer as approved by FIVB / FIBA / BWF for longer life and less maintenance
- Maple wood/Teak wood flooring with the flooring system and manufacturer approved by FIVB/FIBA/BWF may be provided where the Multipurpose Indoor hall is to be used by National campers / Elite trainees of ball games/badminton
- If the area where the multipurpose hall is constructed / being constructed is termite infested, Synthetic Polyurethane flooring approved by FIVB / FIBA / BWF should only be provided. In no case wooden flooring should be provided, in termite infested areas without explicit approval of DG SAI
Other than Field of Play
Rooms – Vitrified or Ceramic Tiles
Corridor – Vitrified Tiles or Kota stone
Common Areas – Vitrified Tiles or Kota stone
Store rooms – Kota Stone or Cement Concrete
Toilet – Non skid ceramic tile
Staircase – Kota stone
Entrance area – Vitrified Tiles or Granite or Kota stone
iii) Height
The clear height of the Indoor hall should be minimum required for the training purpose specific to the sports discipline for which it is intended to be used.
Clear height for Combat sports should generally not be more 4.5 to 5 mt depending on the floor area of the hall, for ball games/badminton provide minimum clear height as under:
- In case the Indoor hall is likely to hold National/International level completions of ball games, the clear height should be provided as per International federation guidelines
- Clear height for various sports discipline has been compiled for different level of sports discipline in this handbook for reference
iv) Miscellaneous
- False ceiling should not be provided unless the hall is being air conditioned.
- No Multipurpose hall will be Air-conditioned unless it is proposed for holding National level competitions.
- Air-conditioning of Indoor hall shall be considered only after approval of DG SAI (Director General of Sports Authority of India).
v) General specifications
Wall finish
Rooms – Oil Bound Distemper
Corridor – Oil Bound Distemper
Common Areas – Oil Bound Distemper
Store rooms – Dry Distemper
Toilet – Ceramic tile up to 2.1 mt height.
Entrance area – Oil Bound Distemper.
Windows
- Powder Coated Aluminum window
- In STC/SAG Centre provide Mild steel windows except in locations near sea or in humid weather condition provide Powder coated Aluminum windows only
Doors
Wooden Flush Door or Powder Coated Aluminum Door
2) Guidance for fixing dimensions of Multipurpose Indoor Hall
The space required for most games depends on the standard of play; generally the higher the standard the larger the space. The playing area is usually the same size but increased safety margins and clear height may be required.
Foremost competition play an extra zone is required for team benches and an officials’ table and a further security zone between teams and spectators may be required for major events. Adding these margins around the playing area produces the critical overall space – the minimum safe area for each standard of play.
In specialist halls individual requirements, particularly for sports that need a larger pitch such as handball, may overrule the modular method in favour of the key sport’s critical dimensions. Other factors which may militate against the modular method include:
Dedicated extra space – additional spectator seating where a large hall serves as a regional sports arena to adjust to structural and key building component sizes on-sports events that require increased space where a multi-sports hall is designed furor national standard play in one or more sports.
3) Which sports – how many courts?
Guidance on selecting a hall size to accommodate a range of sports at different levels of play is shown in the table.

It covers the sports that require line markings and confirms the number of courts and pitches for each size of hall. The badminton court is the smallest of all games requiring line marking, as such the sizes and layout of Multipurpose hall has been designed in multiples of size of badminton courts. The light fitting should be placed as per the layout of badminton courts, and it is found be fulfill the requirement for other sports played in that MP
hall.
The table omits sports that need less space for which all the sizes noted have ample capacity and sufficient clear height. The data in the table has been taken from compilation on sizes and layouts of Sports Halls by an international Organization committed towards promoting sports.
The abbreviations used denote:

i) Four-court hall
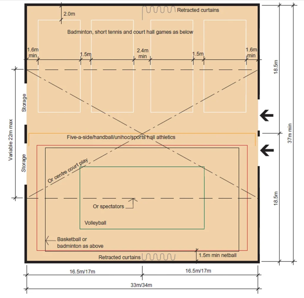
The critical minimum dimensions for this popular sports hall size are 33 x 18 x 7.6m. The main structure must always be aligned between the badminton courts to create four bays. Additional width can be considered to accommodate an extended spectator zone. Adding 1.5m to the length and 0.25m to the width allows for a full-size netball court with adequate side and end margins.

- A minimum height of 7.6m must be maintained over the entire badminton court area, while a minimum of 7m is sufficient for most team games, including basketball and volleyball.
- The 33 x 18m dimensions allow for four doubles badminton courts, with a central division net.
- The 18m width is also ideal for several smaller-space sports.

ii) Six-court hall
The 33/34 x 27 x 7.6/8.4m hall accommodates two team sports zones or a competition play area aligned with spectator seating. The 3 + 3 badminton court arrangement is recommended over the 4 + 2 layout, which was originally used in this type of hall. The 34m length ensures the required safety margin behind the badminton courts. However, further increases in length are necessary for county-standard play.

- The structure should be aligned between badminton courts to create three full-span bays or include a primary beam across the center of the hall.
- Division netting is hung between the three rows of courts and can also be considered between the two end courts. However, this zone is typically reserved for retractable seating.
- A height of 9.1m and additional length are required for county-standard badminton.
- The hall can accommodate two standard basketball courts or two reduced five-a-side football courts, with modified ‘D’ end markings.
- For wider pitches used in recreational handball,
- The 4 + 2 badminton court arrangement requires a four-bay structure to ensure proper lighting and transverse netting for the four primary courts.
- In the 4 + 2 layout, there is insufficient length to provide full run-back to end-on courts within the 9m zone.
iii) Eight-court hall
The critical dimensions are 37 x 33/4 x 7.6 or 9.1m. This hall can be divided into two full-size play zones suitable for most sports hall team games. As hall size increases, height requirements become more demanding. The environmental impact of taller halls must be weighed against the limitations of lower ceilings, which may restrict use and increase the risk of ball damage.

- This size is particularly suitable for top-division basketball.
- The structure should be aligned between badminton courts to provide four full bays or incorporate a central primary beam.
- Four standard badminton courts can be marked out or rolled down, requiring a clear height of 9.1m.
- To accommodate a minimum-size indoor handball court, the length must be increased to 39m.
- These halls can seat over 1,000 spectators for a table tennis final or other sports with limited space requirements.
- Additionally, eight-court halls are often used for non-sports events, requiring careful planning for user and equipment access.
iv) Nine-court hall
This 51 x 27 x 9.1m hall is suitable for STC-standard (Sound Transmission Class) handball. Its elongated dimensions also provide more flexibility for gymnastics.

- The hall area is 11% larger than the eight-court hall, offering greater sports capacity and additional space for more sporting disciplines.
- The main structure should divide the hall into three zones, with secondary structures placed between the badminton courts.
- The layout allows for three to six activity zones, ensuring good access from a circulation route along one side of the hall.
- The hall accommodates six standard roll-down badminton courts and provides seating for approximately 500 spectators in the central zone.
v) Twelve-court hall
A twelve-court hall, measuring 54 x 33 x 9.1m, has the capacity of a small regional arena and serves as a spectator venue for local-level competitions. It is a larger version of the nine-court layout.

- Three modules of the four-court hall can be arranged by dividing the length into 18m zones with variable width or into two six-court hall zones.
- The primary structure should run between these zones, with secondary structures placed between the badminton courts.
- Additional flexibility is provided through lengthwise subdivision.
- For handball and other sports, over 700 seats can be aligned along one side of the hall, with more seating available for other sports or entertainment events.
- Increasing the width allows for seating banks on both sides and possibly at both ends of the competition pitch.
Dimensions for individual sports
Badminton Court


Basketball Court


Cricket Practice Pitch


Five-a-side Football Pitch

Handball Court


Hockey Pitch


Korfball Pitch


Netball Court


Volleyball Court

