If you want to know about the introduction of acoustics or acoustics in cinema or acoustics in landscape, please click the link.
Acoustics in an auditorium refer to the way sound behaves within the space, and how it is heard and perceived by the audience. A well-designed auditorium should have good acoustics, which means that sound is clear, balanced, and evenly distributed throughout the space.
1) Auditorium general characteristics
- Sound is as much a part of man’s man-made environment as heat or light. It can now be’ effectively managed, notably in rooms where music is heard, by applying the principles of acoustical physics

- The room in which we listen to sounds has an important influence on what we hear. This section will identify some of the principal means currently available for judging the quality of an auditorium.
- However, the design of such spaces is still considered an inexact science.
- The architecture of the enclosure should contribute as much as possible to overcoming the inverse square law and the bass loss problem. Some of the general characteristics for a good general-purpose auditorium are indicated.

2) Projection of sound
- A good auditorium will accomplish effective projection of the sound to the rear of the auditorium so that those distant listeners will not experience the extreme loss of sound level caused by the inverse square law. That projection is normally achieved by having a sufficiently long reverberation time.
- Another significant contributor will be a high, reflective ceiling to reflect sound to the back of the auditorium.

3) Clarity
- While the richness and fullness added by auditorium reverberation is desirable, such reverberation decreases clarity of articulation.
- Fullness and richness work against clarity, and a reasonable reverberation time must be reached by an appropriate compromise of clarity vs fullness.
- Clarity can also be diminished by undesirable echoes. At specific locations in auditoriums, clarity can be diminished by anything which blocks part of the direct sound and therefore increases the fraction of reverberant sound reaching a person.
4) Balance of high and low
- Achieving a proper balance of the high and low frequencies of sound in the back of an auditorium is usually a matter of boosting the bass.
- If an auditorium has a short enough reverberation time that it approaches the inverse square law, then the bass loss problem is encountered. In most auditoriums,
- bass loss problem is partially overcome by having a reverberation time for low frequencies which is longer than that of the high frequencies.

5) Even dispersion
- Sound is more pleasing if it is evenly dispersed, with no prominent echoes, no significant “dead spots” or “live spots” in the auditorium.
- Even dispersion is usually achieved by avoiding any focusing surfaces and avoiding large flat areas which reflect sound into the listing area. Sometimes it is desirable to add some anti-focusing surfaces.
- High reflective flat parallel walls are to be avoided as they produce a “flutter echo”.
- Angled side walls spread the sound and give even dispersion
- Sometimes the side walls are broken in to angled segments or anti-focusing surfaces are used for dispersion
6) Musical presence
- After all the main characteristics of auditorium acoustics are accounted for: proper reverberation time, longer reverberation time for low frequencies, even dispersion, etc., There still remain nuances which cause persons to prefer some apparently comparable auditoriums over others. Words used to describe the reasons for such preferences are “intimacy”, “musical presence”, or other words to imply that the listener felt more a part of the performance and not isolated from it.
- One physical factor which has been correlated with such preferences is the time between the direct sound and the first reflected sound which reaches a listener.

- Quantitative studies indicate that the first reflected sound should arrive within about 30 msec of the direct sound, and that time lags of 50 msec or more draw negative reactions from listeners.
7) Reverberation
- Reverberant sound is the collection of all the reflected sounds from the surfaces of an enclosure like in an auditorium.

- It is a desirable property of auditoriums to the extent that it helps to overcome the inverse square law drop off of sound intensity in the enclosure.
- However, if it is excessive, it makes the sounds run together with loss of articulation – the sound becomes muddy, garbled.
- To quantitatively characterize the reverberation, the parameter called the reverberation time is used.

8) What is desirable reverberation time for an auditorium?

- The optimum reverberation time for an auditorium or room of course depends upon its intended use.
- Around 2 seconds is desirable for a medium-sized, general purpose auditorium that is to be used for both speech and music.
- A classroom should be much shorter, less than a second.
- A recording studio should minimize reverberation time in most cases for clarity of recording.
9) Longer reverberation for lows
- This bass problem is a characteristic of the ear since the ear shows progressively greater discrimination against low frequencies as the sound gets softer.
- This problem can be partially overcome by designing the auditorium so that its reverberation time for low frequencies is greater than that for high frequencies.

- The graph shows a progression to higher reverberation times for low frequencies.
- It is typical for the reverberation time for low frequencies for a good auditorium to be some 30% higher than the overall average reverberation time.
- This characteristic helps to deal with the bass loss problem, one of the fundamental problems of auditorium acoustics.
- The auditoriums cited below are some of the most outstanding in the world, and they show the consistent pattern of having significantly longer reverberation times for low frequencies


10) Non focusing surfaces
- Even dispersion is such an important contributor to good acoustics that it is sometimes desirable to use anti-focusing surfaces in a music making area.
- In modern architecture with its flat expanses, it is necessary to design in some anti-focusing properties.
- Even large flat reflective surfaces are to be avoided because of the prominent reflection which will be produced.
- Parallel flat walls can produce a pattern of reflections known as a “flutter echo” as the sound waves travel back and forth between the surfaces.
11) Focused reflections
i) Elliptical enclosure

- An ellipse has two focus points. Sound projected in any direction from one focus point will travel to the other. Sound from any point will tend to be focused toward some point, so ellipses are certainly to be avoided for most acoustical purposes.
ii) Parabolic enclosure
- All rays from the focus of a parabola to its surface will be directed outward as parallel rays.
- It is useful for projecting sound.
- Two parabolas as shown below can direct sound from the focus point of one to the focus point of the other with great efficiency. A microphone element can be placed at the focus point of a parabola and then aimed at a distant sound source –

iii) Rotunda effect

- Ordinary conversation can be if the speaker and listener are both close to the wall of the dome.
- Many buildings with dome-like rotundas exhibit this guided reflection phenomena
13) Criteria for good acoustics
- Optimum reverberation time is a compromise between clarity (requiring short reverberation time), sound intensity (requiring a high reverberant level), and liveness (requiring a long reverberation time).
- The optimum reverberation time of an auditorium is dependent on the use for which it is designed.
- Reflected sound arriving from the sides seems to be important to the overall reverberance of the room.
Anti focusing surfaces

14) Concert hall
- Important subjective attributes of concert hall acoustics include intimacy, liveness, warmth, loudness of direct sound, reverberant sound level, definition or clarity, diffusion or uniformity, balance and blend, ensemble, and freedom from noise.

- In addition to the attributes above, spatial impression and early decay time are important. The spatial impression is dependent on contributions to the early reflections from above and especially from the sides. The initial rate of decay of reverberation is apparently more perceptually important than the total reverberation time.
- Echoes, flutter echoes, sound focusing, sound shadows, and background noise should be avoided in an auditorium design.
- The greater the early decay time (up to two seconds), the greater the preference for the concert hall. Above two seconds, the trend it reversed.
- Narrow halls are generally preferred to wide ones.
- Preference is shown for halls having a high “binaural dissimilarity”.
- Less “definition” is preferred. Definition represents the ratio of energy in the first 50 milliseconds to the total energy.
15) Auditorium (Introduction)
- Auditoria: the term auditorium is used as a blanket description of space where people gather. It is a space for hearing, seeing, feeling. The simplest explanation would appear to be ‘the part of the building occupied by an audience’.

An auditorium can be used as a:
- Concert hall
- Theatre
- Cinema hall
- Church
- Court rooms
- Council chamber
- Multi purpose hall
16) Concert halls

Where performance of orchestral music takes priority in a proposed auditorium , the following topics may asist in outline design development.
- Tradition
- Fashion
- Hall shapes
- Expectations
- Seating
- Ventilation
- Sound quality
- Materials
- Orchestra
Tradition
Tradition is important in concert hall and theatre design more than for any other building types because the form and acoustical characteristics relate to a long train of development.
Fashion
Fashion is the obverse influence to tradition but should be acknowleged.
- As with any performing art ,the tastes of the audience change
- Full scale orchestral music is international in nature , yet ‘small world’ ,so a favoured hall has a strong influence across the world
Hall shapes
- Rectangular shoebox
- Square or near square
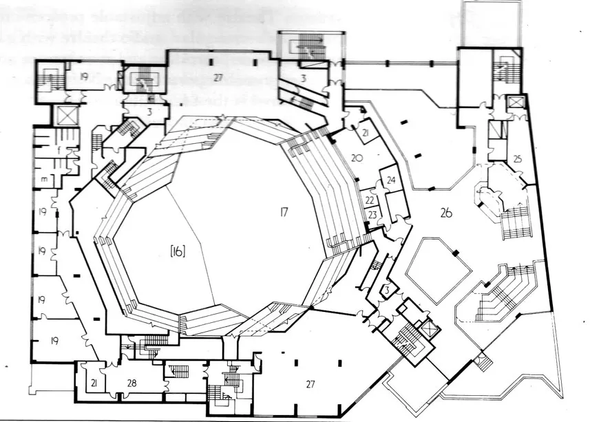
- Geometric (octagonal, polygonal, circular)
- Fan
- Horseshoe

Expectations
Modern halls are expected to have
- Recording quality live performance
- Democracy of hearing quality throughout a hall
- Comfortable cultural experience
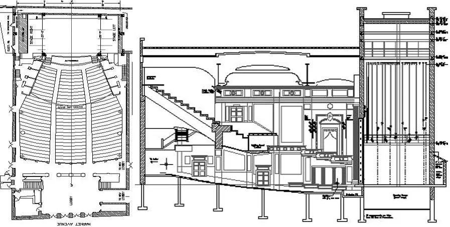
17) Theatres
- Theatre design of the last 100 years has been based on a proscenium framed stage with auditorium including balcony ,circle and boxes.
- The association of british theatre technicians has suggested the following size categories:
Very large — 1500 plus seats
Large — 900 -1500 seats
Medium — 500 – 900 seats
Small — under 500 seats
- For small theatres a vol of 3cu m /occupant should give an rt of 0.8 -1 sec. to suit the space for speech.
- Planning and audience can follow everal paths :
- Conventional proscenium arch
- Thrust stage
- Theatre in the sound

- The width of the proscenium will depend on the events to be staged Drama demands 9 -10.5m. Width muscial comedy 18 m. Opera 18 -24 m.
Materials
- Reflective panels in the form of an angled descendind towards the stage end . overhead reflection is important for natural reinforcement of speech to improve intelligibility at the rear of the hall
- Side walll and back walls should have sound absorptive finishes away from the stage end
- Surfaces not reflective should be dispersive
- Balance of sound absorptive and reflective finishes should be used to create a drier hall than for music – target reverberation time 1-1.25 sec
- It is a product of the twentieth century rather than tradition. The mix of uses as defined into music ,speech , sports etc.
- Sports – music: both require good height and hence can be combined ,given the reservations regarding ability to arrange and clear seating. Sports hall tend to be too wide and less than ideal in shape.
- Sports – drama: least compatible combination .Sports hall tend to be with hard finishes.
18) Multi-purpose halls

19) Cinemas
- The origin of moving pictures is in the fair ground bioscope entertainment of the late nineteenth century.
- Cinema auditoria as currently designed have diminshed in size, unlike other auditoria types. The ambient sound experienced in a cinema due to its neighbour depends on the area of shared partition and the absorption characteristics
- Cinemas tend to be planned in groups within a complex rather than free standing, so box in box techniques are sometimes necessary to provide satisfactorily low levels of intrusive noise within the cinema. ideally, walls should be masonary and the roof substantial.
- Finishes generally should be sound absorbent: ceiling, floor, walls. Wall absorption can be affected by panels or by medium weave curtains hung in folds, or even by permitting the floor carpet finish to continue up the walls, at least up to dado height. carpet to aisles as well as under seats absorbs footfall sounds.
Overall, good acoustics in an auditorium require careful consideration of a number of factors, including room dimensions, surface materials, sound system, and audience seating. By taking these factors into account and designing the space accordingly, it is possible to create an auditorium that provides clear, balanced, and enjoyable sound for all audience members.